1580 кв.м. в Москва, Вавилова, д. 69, блок 1580 кв. м
Класс B
г. Москва, Вавилова ул, 69/75
| Этаж | 1 |
| Ставка включает OpEx | нет |
| Этаж доп.инф | 1 |
| Отдельный вход | да |
| Состояние помещения | Типовая |
| К/У включены | нет |
| Э/энергия включена | нет |
| Тип предложения | Аренда |
| Общая площадь, кв.м. | 1580.00 |
| Этажность | 11 |
| Вентиляция | Приточно-вытяжная |
| Паркинг | Городская |
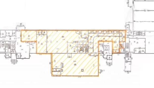
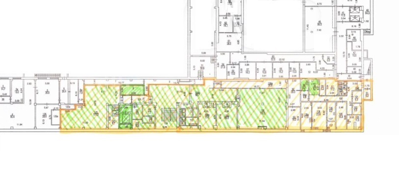
Аренда помещения под ресторан, общепит, торговлю. Общая площадь 1 580 кв.м, первый этаж 850 кв.м, подвал 730 кв.м. Здание нежилое, бизнес-центр, все коммуникации для общепита. Отдельный вход, витринные окна, выполнен ремонт. Электричество 300 кВт.
286 м2
от 71 328 руб./м2/год
433 – 2666 м2
от 11 700 руб./м2/год
320 м2
от 71 160 руб./м2/год
460 м2
от 31 560 руб./м2/год
69 – 487 м2
от 31 644 руб./м2/год
120 – 469 м2
от 31 968 руб./м2/год
Данное предложение не является офертой, указанные условия могут быть изменены
Заметили ошибку? Выделите текст и нажмите CTRL+ENTER
|
|
||
Запросить информацию
Ваша заявка успешно отправлена.
Мы свяжемся с Вами в ближайшее время.
Что-то пошло не так. Попробуйте еще раз или свяжитесь с нами по телефону 959-08-78
