5000 кв.м. в Аренда Light Industrial в г Химки мкрн Планерная, блок 5000 кв. м
Класс A
г. Москва, Новосходненское ш, 98
| Этаж | 1 |
| Этаж доп.инф | 1 |
| Отдельный вход | да |
| Состояние помещения | Типовая |
| Э/энергия включена | нет |
| Тип предложения | Аренда |
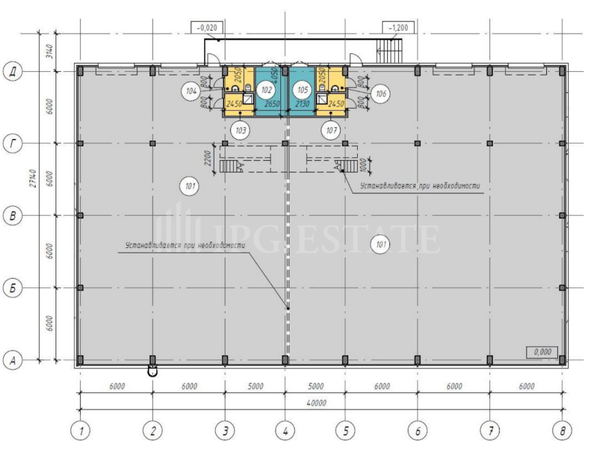
| Общая площадь, кв.м. | 9385.00 |
| Этажность | 1 |
| Вентиляция | Приточно-вытяжная |
| Паркинг | Наземная |
Продажа земельного участка в г Химки 5000 кв м

Ваша заявка отправлена и будет обработана в ближайшее время.
Что-то пошло не так. Попробуйте еще раз или свяжитесь с нами по телефону
720 – 1440 м2
37885 м2
Данное предложение не является офертой, указанные условия могут быть изменены
Заметили ошибку? Выделите текст и нажмите CTRL+ENTER
|
|
||
Запросить информацию
Ваша заявка успешно отправлена.
Мы свяжемся с Вами в ближайшее время.
Что-то пошло не так. Попробуйте еще раз или свяжитесь с нами по телефону 959-08-78
