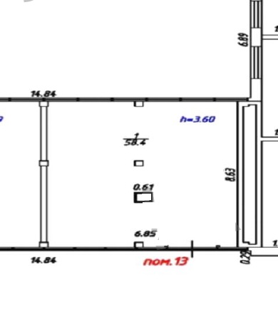
58 кв.м. в ЖК Ильинские Луга, Архангельская 15, блок 58 кв. м
Класс B
п. Ильинское-Усово, Архаргельская, 15
| Этаж | 1 |
| Отдельный вход | да |
| Состояние помещения | Типовая |
| К/У включены | нет |
| Э/энергия включена | нет |
| Тип предложения | Продажа |
| Арендаторы | Wildberries |
| Общая площадь, кв.м. | 58.00 |
| Этажность | 9 |
| Вентиляция | Приточно-вытяжная |
| Паркинг | Наземная |
Продажа торгового помещения в ЖК Ильинские Луга, дом сдан и заселен, арендатор Wildberries работает.
Площaдь помещения 58,2 м2, 1 этaж, отдельный вход, витрина, электричество 11 кВт
Арендная плата 1й год - 145 000 руб. в месяц, со 2 года - 175 000 руб., далее безусловная индексация арендной платы на 6 % ежегодно.
Данное предложение не является офертой, указанные условия могут быть изменены
Заметили ошибку? Выделите текст и нажмите CTRL+ENTER
|
|
||
Запросить информацию
Ваша заявка успешно отправлена.
Мы свяжемся с Вами в ближайшее время.
Что-то пошло не так. Попробуйте еще раз или свяжитесь с нами по телефону 959-08-78
